枕形袋裝多列多層裝箱機的機械及控制系統設計
本文講解了枕形袋多列多層裝箱機的組成和控制系統、多列多層排列規律和裝箱的工藝過程,闡述了其組成和裝箱工藝特點。研究了枕形袋的特性及單列變多列的方法和多列枕形袋的偷送工藝,利用數字包裝周期的理論對傳動系統進行設計和論證,設計的裝箱運動軌跡,解決了枕形袋多層多列裝箱的問題。
1 枕形袋多列多層裝箱機的組成
1. 1主要組成機構
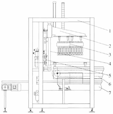
枕形袋多列多層裝箱機主要由機架總成,位移機構、抓袋(工裝)機構、導向機構、驅動機構、輸袋機構和輸箱機構等組成,如圖1.抓袋(工裝)機構是快速更換機構,根據枕形袋、裝箱等規格的變換而更換。

圖1枕形袋裝箱機系統組成
1.機架總成:2.位移機構:3.抓袋機構:4.導向機構:5.驅動機構:6.輸袋機構:7.輸箱機構
1. 2控制系統
枕型袋多層多列裝箱機控制系統主要由可編程控制器G1(PLC)、人機界面G2、伺服控制驅動器A1和A2、變頻器A3和A4、檢測、執行元件等組成(見圖2). G1和G2構成控制系統的核心和操作界面,所有的控制參數均可在人機界面上設置完成。PLC(可編程工業控制器)通過CANopen總線對A1 , Az傳輸指令,控制伺服電機M1和M2的運行,M1對裝箱過程驅動,M2對袋子輸送鏈驅動,同時將M1的運行狀態反饋給G1,控制電磁閥等執行元件,通過CANopen總線對A3 , A4變頻器進行參數設置和啟停控制,控制電機M1和M2,完成箱子的兩級輸送。

圖2 控制系統原理示意
1. 3裝箱周期數字化的應用
從抓取物品到放入到包裝箱,再返回到抓取點的整個過程,稱之為一個裝箱周期。抓取頭運動的每一個位置,伺服電機的旋轉編碼器會產生一組相應的數據傳輸到伺服驅動器上,驅動器通過CANo-pen總線將數據傳送到PLC中,完成一個裝箱周期,PLC對該數據復位,這樣每裝一次箱,均會產生一組0到m的周期數據,這組數據對應著裝箱過程的各個位置,把這組有規律變化的數據稱之為數字周期或裝箱過程位置數字化。在裝箱過程的每一個動作有一個相應的位置數據,裝箱過程動作可以準確地控制。
2 枕形袋多層多列裝箱的工藝
2. 1每層的排列規律
圖3是枕形袋每層5列,每列5袋,每箱7層的裝箱立面和平面示意圖,反映出枕形袋在箱內多列多層排列規律。從圖3 (a)可以看出,袋子與袋子之間搭邊排列,以保證袋子在箱子中緊密排列,提高裝箱質量和效果。
2. 2 多層裝箱的工藝
1)待裝箱的袋子排列整齊的輸送到抓取位,空箱輸送到裝箱位;
2)抓袋工裝位移到抓取位,抓取袋子;
3)離開抓取位后,完成抓取的袋子隔排上下錯位,排和排之間收縮緊密,列和列之間收縮緊密(根據數字包裝周期的參數控制);
4)抓袋工裝位移到袋子放入箱子的工位,釋放袋子,完成一層袋子的裝箱,重復以上工序,直到裝滿箱子為止;
5)傳送裝滿袋子的箱子到封箱工位,完成一箱的裝箱工序。

圖3枕形袋裝箱平而立而示意
3 枕型袋的整理機構與傳送工藝研究
3. 1單列變多列機構的組成
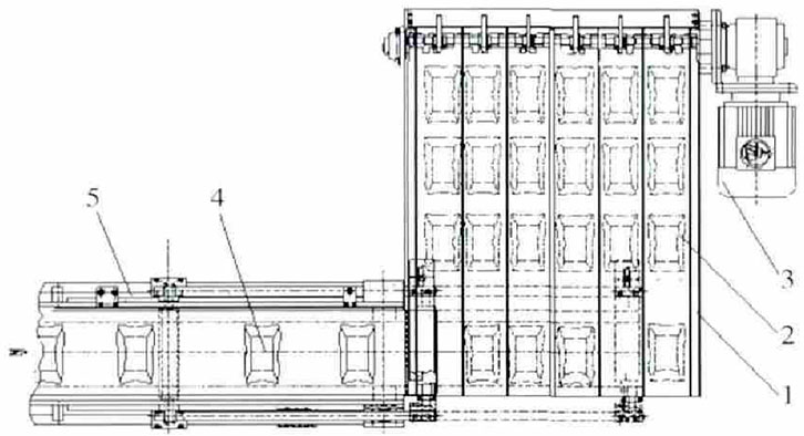
枕形袋從包裝機輸送過來的是單列,裝箱是多列排列,因此首先將單列變成多列的排列。單列變多列主要由可伸縮定位輸送機和多列輸送鏈組成,如圖4可伸縮定位輸送機主要由主傳送帶(包括皮帶糾偏機構、初始位、限位、袋子檢測光電開關等組成)和伺服電機控制與驅動的伸縮機構組成,其工作原理是伸縮帶快速移動到最遠端,檢測到一個袋子并輸送到多列輸送帶上,向后退一個袋寬的距離,等待下一個袋子到來,依次將多列輸送帶上放滿枕形袋,完成一組單列變多列的工序。

圖4枕形袋單列變多列平而組成
1.多列輸送鏈;2.多列排列枕形袋;3.多列輸送鏈驅動電機:4.單列枕形袋;5.伸縮式理袋機
3. 2單列變多列機構的重要參數關系
枕形袋單列變多列位置尺寸關系見圖5。從圖5中可以看出,伸縮帶的初始位置到第1列的中線距離為c(c≥b),每列間距a,等待位到第m列(多列數)中線距離為b,
b=Vt. (1)
式(1)中,V為伸縮帶主傳送帶的線速度,單位為mm/s,t為枕形袋從伸縮帶跌落到多列帶需要的時間,伸縮帶平面距多列帶平面距離為h,根據自由落體定律得,
h=gt2/2(g為重力加速度)
由公式(2)得
,將t帶入(1)式得
, (3)
初始位到等待位的距離
S1=S一b,
式(4)中,S=c+a(m一1),由(3)和(4)得
(5)
為了簡化編程,設
那么S1 =a(m一1),因此,對于單列變多列的調試首先尋找和確定初始位,控制過程就變得比較簡單。

圖5 枕形袋單列變多列位置尺寸關系
3. 3單列變多列的工藝
伸縮帶端頭正常停機時停留在初始位,初始位距離多列帶的第1列為計算公式(4).jpg開機后按照以下工藝運行。
1)伸縮帶快速向前移動S1,等待枕形袋到來,檢測到枕形袋,向后退a,令m=m一1;
2)m≠0,檢測到袋子,向后退a,令m=m一1;當m =0時,轉到1),否則重復2);
3)當遇到正常停機,伸縮帶的傳送帶停,伸縮后退到初始位停機,急停時,伸縮帶及伸縮帶傳送帶立即停。
3. 4枕型袋多列輸送規律的研究
枕形袋的輸送不同于瓶裝、盒裝的輸送,不能大量的堆積。解決枕形袋輸送的最簡單辦法就是通過3級或4級輸送,采用快、慢、快、慢的差速輸送。第1級輸送速度比較快,將袋子與袋子拉開較大的距離,每個袋子的輸送過程中盡量減少外界因素的影響。第2級輸送較慢,使袋子在2級輸送的過程中有搭邊現象,但不能堆積過多。第3級輸送比第2級輸送快一點,使袋子與袋子首尾相接。第4級輸送調整到抓取需要的距離,由裝箱機的伺服電機M2驅動與控制。
4 多層裝箱的傳動機構
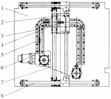
多層裝箱的傳動機構采用固定的運動軌跡,解決了裝箱過程的二維運動,使機械機構簡單,操作維護方便,提高了設備的使用效率,降低了能耗,運動軌跡如圖6.運行軌跡主要由水平導向機構、抓取頭連接座、移動連接機構、導軌槽、垂直導向機構、傳送鏈條、驅動機構、安裝板等組成。
4. 1平面導向機構
平面導向機構由水平和垂直導向機構組成(見圖6),水平導向機構作用是水平導向和水平滑動。抓取袋子工裝機構安裝在連接座上,安裝座安裝在垂直導向機構上,連接驅動鏈條,垂直導向機構安裝在水平導向軸上,隨著水平導向機構整體移動。這樣抓袋子工裝機構就可以在同一平面上沿著運行軌道曲線平穩運行,將枕形袋從抓取工位放入箱子中完成裝箱。

圖6運動軌跡與導向機構示意
4. 2固定軌跡傳送機構
固定傳送機構的作用是抓袋工裝按照固定的運動軌跡移動。固定傳送機構主要由移動連接機構、傳動鏈條、鏈條導向槽、鏈輪、驅動機構(減速機和伺服電機)等組成(見圖6),傳送鏈條和抓取頭連接座連接在一起,驅動機構帶動鏈條沿著鏈條導軌槽運動,按照裝箱工序,通過控制伺服電機的位移量,將枕形袋從初始位抓取放入箱子里不同層中完成裝箱。
4. 3傳動運行的參數設置
通過人機界面,運動行程可編程,對于不同的產品規格和包裝形式,進行多列多層裝箱。一臺裝箱機,適應于批量小、規格多的日化、白酒、農藥的異型瓶裝箱,枕形袋包裝(如乳品、小食品、調味品、食鹽、白糖等)的多層裝箱,有廣泛推廣意義。
初始位定義,裝箱機在初始開機和正常停機抓取工裝的停留位稱之為初始位。一般情況下,程序設計者會設計一個尋找初始位的程序,使裝箱機在運行中有一個準確的初始位(或參考位).對于安裝好的裝箱機,枕形袋輸送鏈平面距離初始位的距離L1(常數),輸箱鏈到平面距離初始位的軌跡距離L2(常數),對于不同的裝箱產品,裝箱規格要進行枕形袋高度h,設定,裝箱的層數k設定,包裝紙箱厚度h2設定,這些參數確定后,裝箱機就會按照要求完成裝箱過程。
4. 4裝箱傳動過程
裝箱機的抓取工裝在正常停機時停留在初始位(按照功能也可稱之為等待位),開機后設定相關參數,按照裝箱的工藝運行。
1)檢測枕形袋輸送是否到位,如果沒到位等待枕形袋到位,到位后運行L1一h1位移,抓袋,設定n=1;
2)運行L1 + L2一h2一((n+1)h1位移到第n層放袋位,如果檢測紙箱沒到位,需要在初始位等待,同時在運行的過程中,根據數字包裝周期的數據,抓袋工裝進行調整,對
抓袋子進行歸攏和調整,運行到第n層放袋工位放下袋子,第n層袋子裝入箱子,同時n=n+1。
3)運行L11+ L2一h2一((n+1)h1位移到抓袋位,如果檢測到枕形袋沒有到位,在初始位等待,同時在運行的過程中,根據數字包裝周期的數據,對抓袋工裝復位,開始抓袋;
4)重復2)和3),完成每一層的裝箱,直到n-k時,箱子裝滿,完成一個裝箱周期,輸送滿箱和空箱,返回到1)步,進行下一箱的裝箱。